Umnutzung Zeughaus
Wie wird aus einem Zeughaus eine Kulturstätte für Kunstausstellungen und Events? Bei dieser zentralen Frage interessieren bauliche, ästhetische und funktionale Gesichtspunkte gleichermassen.
Der zweieinhalbgeschossige Bau besteht aus einer äusseren, massiven Mauerschale mit einem inneren Holztragwerk, welches als Hängekonstruktion die einzelnen Geschosse massgeblich prägt – den hölzernen Dachstuhl, das an Zugstützen daran aufgehängte Obergeschoss und das gänzlich stützenfreie Erdgeschoss.
Abgesehen von wenigen Einbauten ist pro Geschoss jeweils ein grosser, zusammenhängender Raum angeordnet, der sowohl für die frühere Nutzung, die Aufbewahrung und Bereitstellung von Kriegsmaterial optimal war.
Passend zur ursprünglichen Idee umgibt das Haus eine wehrhafte und verschlossene Aura. Hochliegende schmale Fenster mit starken Bossierungen, schwere Holztüren und kraftvolle Lisenen vermitteln einen abweisenden Charakter und stehen im Widerspruch zur künftigen, öffentlichen und einladenden Geste des Hauses.
LÖSUNGSANSATZ
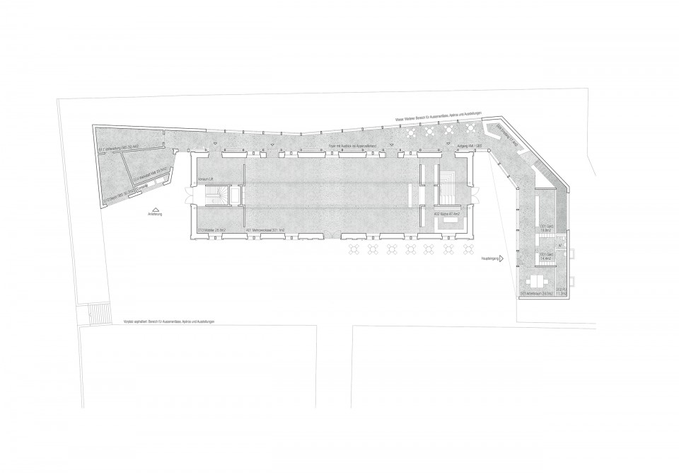
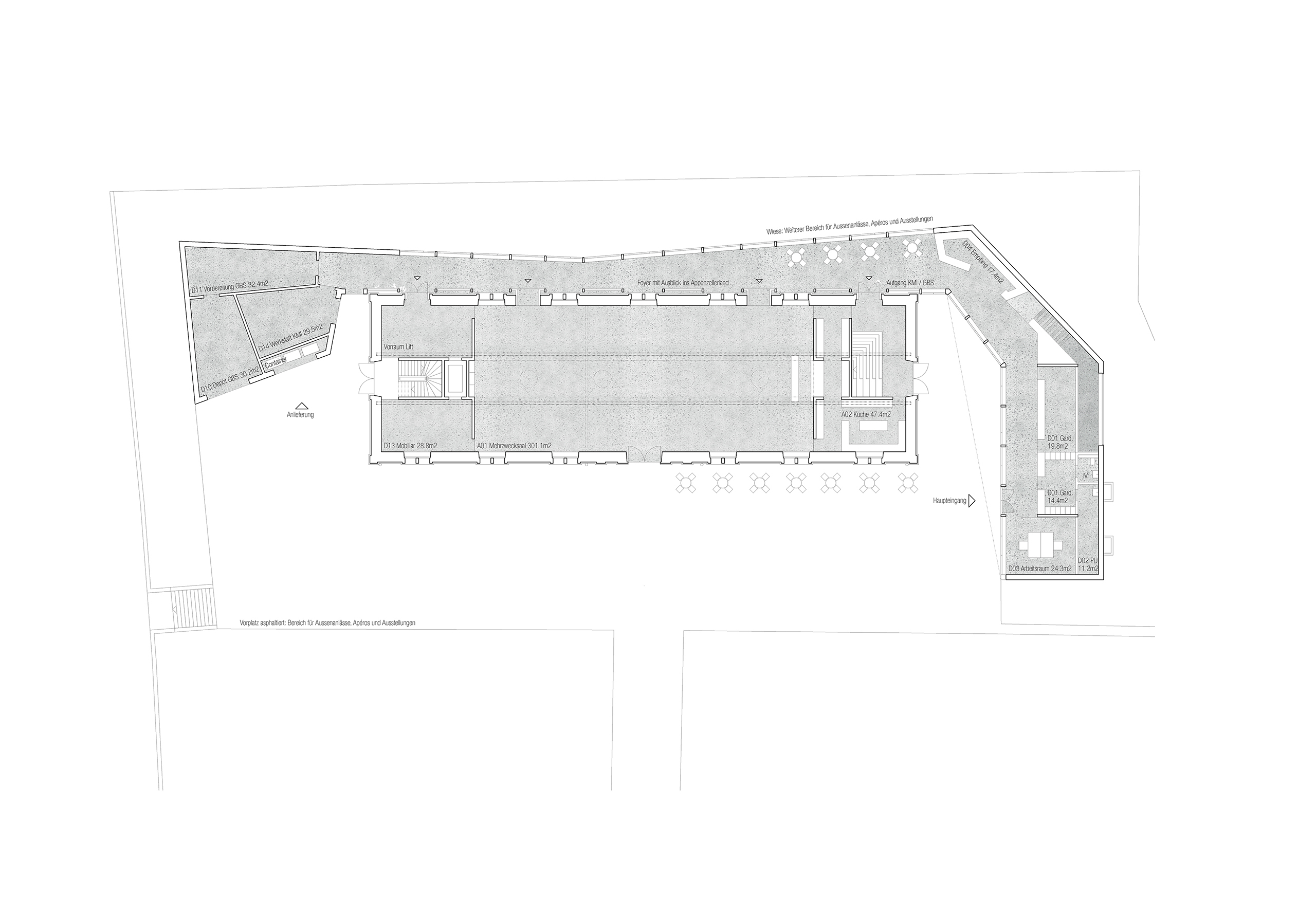
Der Anspruch, die drei Hauptnutzungen Mehrzwecksaal, Wechselausstellung und Grubenmann-Sammlung auf jeweils einem eigenen Geschoss unterzubringen und „unter einem Dach“ zu vereinen, legt ein sinnfälliges Erschliessungskonzept programmatisch nahe.
Drei konzentrierte Massnahmen sollen aus dem militärisch strengen Zeughaus ein einladendes „Kultur-Zeug-Haus“ formen:
1. Cordon Rouge
Ein neues eingeschossiges Eingangsgebäude schmiegt sich rückseitig an das Zeughaus an. Der niedrige Baukörper steht nicht in Konkurrenz mit dem Zeug- haus, sondern formt eine sinnfällige Ergänzung. Er bildet auf den Stirnseiten jeweils einen Kopf aus – talseitig den Haupteingang und hangwärts den Anlieferungsbereich.
Der „Neubau“ steht anstelle des rückwärtigen Anbaus und verwandelt das teilweise abgebrochene Verwalterhaus in ein Eingangsgebäude, welches neben dem Empfang auch ein Foyer für den Mehrzwecksaal aufweist.
Das zum Eingang hin aufsteigende Gebäude schliesst den asphaltierten Vorplatz ab. Ein Vordach und eine verglaste Front laden den Besucher ein, einzutreten. An der Garderobe und am Empfang vorbei gelangt der Gast zum langgezogenen Foyer. Dort offenbart der Anbau eine Qualität, die das Zeughaus bis anhin nicht kannte: grosse Panoramafenster öffnen den Blick in die idyllische Landschaft. Was vorher Rückseite war, wird nun der Fernwirkung gewahr.
2. Treppenhäuser
Vom Foyer aus führt eine breite Treppe hinauf zur Wechselausstellung der Kulturellen Mitte und zur Grubenmann-Sammlung im Dachgeschoss. Dieses Haupttreppenhaus mündet in einen eindrücklichen Treppenraum, der sich bis unter das Dach erstreckt.
Ein weiteres Fluchttreppenhaus mit Warenlift erschliesst die oberen Geschosse. Die beiden Treppenhäuser sind in der Mittelachse als Einbauten zwischen die Holzstützen gestellt. Dadurch bewahren sie den grosszügigen, langgezogenen Raum und lassen den Blick über das ganze Geschoss frei schweifen.
3. Intervention Dach
Damit der Dachstuhl zum nutzbaren Ausstellungsraum werden kann, erhellt das aufgesetzte Dachoberlicht die Mittelachse zwischen den Treppenhäusern.
Die szenografisch „ins Licht gerückte“ Mittelachse zeigt sich aussen als plastisch durchformter Dachaufbau. Er unterstützt die neue Erscheinung des Zeughauses als „Kunst-Zeug-Haus “ sowohl von Aussen als auch von Innen.
KONSTRUKTION UND MATERIALISIERUNG
Ein neuer Leichtbau aus Holz windet sich um das massige Zeughaus herum und scheint mit ihm zu tanzen. Um zu einen gesamten Ganzen zu gelangen, wird die Holzkonstruktion wie beim Zeughaus mit Dachziegeln bekleidet – doch wo hört das Dach auf und wo beginnt die Wand? Dieser spielerische Ansatz vermeidet bewusst das „Architektonische“ und fordert einen abstrakten, skulpturalen Körper. An der Stelle, wo die Ziegelbekleidung eine Öffnung erhält – wie die Fenster oder das Dachoberlicht – wird eine Metallverkleidung vorgeschlagen, um den unter- schiedlichsten vertikalen und horizontalen Anschlüssen immer auf die gleiche Weise gerecht zu werden.
Das „Sich-um-etwas-herumwinden“ wird auch beim Zeughaus selbst thematisiert. Der schmucklose Fries wird mit künstlerischer Gestaltung zum umlaufenden Band.
UMGEBUNGSGESTALTUNG
Auf eine Umgestaltung des vorgelagerten Zeughausplatzes wird bewusst verzichtet. Der leergeräumte Platz kann dadurch für verschiedene Anlässe frei genutzt werden.
Der rohe Charme erinnert auch hier an die frühere Bedeutung als Besammlungsplatz und soll einzig mit Cafétischen oder Festbänken temporär möbliert werden. Zur Landschaft hin ergänzt ein weiterer Aussenraum das reiche Angebot an Aussennutzungen mit einem anderen Charakter.
NUTZUNGSTAUGLICHKEIT / BETRIEBLICHES KONZEPT
Das Zeughaus ist auf die eigentlichen Kernfunktionen reduziert, der Anbau dagegen nimmt alle dienenden Aufgaben wahr wie Garderobe, Empfang, Verkauf und Toiletten. Ebenso sind interne Nutzungen wie Vorbereitungsräume, Werkstätten, Archiv, Lager und Depot so angeordnet, dass diese über die Anlieferung und mit Lift optimal erschlossen sind.
Die konsequente Aufgabenteilung ermöglicht daher vielfältige Szenarien, wie das Haus genutzt werden kann. Parallel verlaufende Veranstaltungen sind nicht nur wegen dem flankierenden Foyers sondern auch wegen der Anordnung der Treppenhäuser in der Mittelachse problemlos: der Treppenaustritt ist immer jeweils links oder rechts möglich.
Die Unterteilbarkeit mit mobilen Elementen, insbesondere im Geschoss der kulturellen Mitte und dem erdgeschossigen Mehrzwecksaal entspricht dem angestrebten Standard einer hohen Flexibilität.
Die Anordnung der Küche erlaubt eine vielfältige Bespielung des Mehr- zwecksaales, des Foyers im Sinne eines Apérobereiches und der beiden naheliegenden Aussenräumen zum Dorf oder zur Landschaft hin.
BELEUCHTUNGSKONZEPT UND RAUMSTIMMUNG
Der bisherige, rohe Charme des Zeughauses soll weiterentwickelt werden. Die Natürlichkeit des Holzes in der sichtbaren Konstruktion und in den Dielen bleibt und wird durch die übrigen weissen Gipsglattstrichoberflächen zum Schmuck. Die Grundbeleuchtung, dem Zeughauscharakter folgend, wird mit einfachen Balkenleuchten gelöst. Richtbare Strahler ergänzen die Beleuchtung, wo sie für die Akzentuierung eines Exponates benötigt wird.
Speziellere Leuchten erhält der Mehrzwecksaal mit vier mittig gehängten Reifenkronenleuchten, die eine festliche Raumstimmung verbreiten.
AUSSTELLUNGSKONZEPT GRUBENMANN-SAMMLUNG
Die Anordnung der Grubenmann-Sammlung im Dachstuhl verlangt nach einer zusätzlichen, natürlichen Belichtung. Zudem stellt die sichtbare Holzkonstruktion gerade für die Grubenmann-Sammlung ein Problem dar, weil die Holzmodelle vor den Sparren und Pfetten zu verschwinden drohen. Dies wird durch eine langgezogene Schale in der Mittelachse gelöst, in die die Holzmodelle auf unterschiedlich hohe Sockel gesetzt werden.
Die Höhe der Exponate ist so gewählt, dass es jeweils vor einem ruhigen, neutralen weissen Hintergrund erscheint. Über der Schale liegt das Ober- licht und rückt die aufwendig gearbeiteten Modelle ins Licht und somit ins Zentrum der Ausstellung.
BAULICHE MASSNAHMEN
Grundsätzlich wird das Zeughaus innen von störenden Einbauten befreit, so dass der grosszügige Einraum überhaupt zur Geltung kommt. Lediglich die beiden Treppenhäuser werden neu gebaut und bilden die einzigen Eingriffe in die Tragkonstruktion. Sonst wird das Zeughaus baulich kaum verändert. Auch im Dachgeschoss wird das Oberlicht aufgesetzt, ohne die Tragkonstruktion zu verändern.
Der rückwärtige Anbau wird durch einen eingeschossigen Neubau ersetzt. Dieser wickelt sich um das Zeughaus und integriert das Verwalterhaus. Das teilweise erweiterte Untergeschoss nimmt die Toilettenanlage und die Haustechnik auf, während das Erdgeschoss zum Eingangsgebäude umgestaltet wird. Das Obergeschoss und das Dachgeschoss werden entfernt.
STATIK
Die bestehende Tragstruktur bleibt erhalten. Einzig beim Lift und den Treppenhäusern sind kleine Eingriffe erforderlich: in der Decke über dem Obergeschoss muss je ein Zugband des liegenden Stuhles unterbrochen werden. Die Zugkräfte können dort mittels Zug- und Druckstäben oder liegenden Trägern in der Deckenebene um die Öffnungen herumgeführt werden.
In der Decke über Erdgeschoss wird nur in die sekundäre Tragstruktur eingegriffen. Im Bereich der Treppenhäuser und des Liftes müssen an der Stelle die Balkenlagen abgebrochen werden.
Auf Untergeschosse wird aufgrund der vorliegenden geologischen Verhältnisse möglichst verzichtet. Wo nicht bereits das bestehende Untergeschoss genützt werden kann, wird darauf geachtet, dieses möglichst ausserhalb des Zeughauses anzuordnen.
WÄRME- UND LÜFTUNGSVERTEILUNG
Analog der Erschliessung erfolgt auch die horizontale Versorgung der Medien entlang des Foyers im Boden. Von dort werden sie in die vertikalen Steigzonen der Treppenkerne geführt. Die Feinverteilung geschieht in den Geschossdecken.
Das Lüftungskonzept des Mehrzweckraumes im Erdgeschoss sieht die Zuluftführung über den neuen Zugängen vor. Die Fortluft wird in der von der Decke abgehängten Mittelpartie ebenfalls unsichtbar abgeführt.













