Interieur Büro, Haus Theaterplatz
Baden

 

Studienauftrag 2006, 1. Preis

Realisierung 2006-2008

Interieur und Möbelentwürfe für einen Brainpool von vier Geschäftsfreunden.

Interieur Büro, Haus Theaterplatz

Im Sinne einer Vertiefung des Architekturmandates zum Haus am Theaterplatz stellte der Bauherr die Aufgabe, für sich und drei seiner Geschäftsfreunde im Stadtzentrum Badens ein gemeinsames Büro einzurichten. Es sollte im zweiten Obergeschoss ein inspirierender Ort zum Arbeiten, Entwickeln neuer Ideen aber auch zum Verweilen – kurz: ein „Brainpool“ entstehen.


Der Entwurf des Interieurs beginnt mit dem Hauseingang. Wer das Wohn- und Geschäftshaus betritt, wird in einer hohen Eingangshalle empfangen. Sie vermittelt einen ersten Eindruck von der Art und Weise, wie in dem Haus gewohnt und gearbeitet wird. Neben dem in Edelstahl ausgekleideten Lift führt eine Natursteintreppe in grüngrauem Schiefer mit einem schwarz glänzenden Geländer in die einzelnen Obergeschosse, deren räumliche Organisation dieselbe ist: Im Herz des Grundrisses erwartet das Entrée.

Es ist zusätzliches Zimmer und verteilt in die einzelnen Räume. Spiegelungen des Materials, Durchgänge und Durchblicke in verschiedene Raumfolgen erzeugen eine spannende Tiefe. Eine erste Schicht bilden die beiden Dielen, die zu einer weiteren Schicht führen: den Nebenräumen und den Eckzimmern.

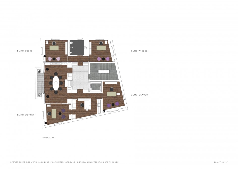
Dank der frei stehenden Lage des Hauses und dessen Grundrissform sind in den vier Gebäudeecken vier Zimmer angeordnet, welche aufgrund der unterschiedlichen Orientierung und dem eigenen Ausblick gänzlich verschiedene Raumstimmungen erlebbar machen.

Jeder der vier Büropartner besitzt eines dieser vier Eckzimmer. Grundsätzlich ist jedes dieser Büros gleich eingerichtet. Variationen entstehen durch die Raumgrösse, den Ausblick und durch die leichten farblichen Unterschiede in der Möblierung.

Dieser Umstand brachte den Bauherrn auf die Idee der Rochade: jährlich sollen die vier Büropartner jeweils um ein Eckzimmer weiterziehen, um sprichwörtlich immer wieder eine neue Perspektive zu erhalten.

Die einzelnen Zimmer sind so gestaltet, dass der Arbeitsplatz gleichermassen wohnliche wie auch ergonomische Aspekte berücksichtigt. Zu diesem Zweck ist  das Zimmer in zwei Bereiche gegliedert: einerseits in einen Arbeitsbereich, bestehend aus einem für das Haus entwickelten Arbeitstisch in gebürstetem, natureloxiertem Aluminium mit einem lichtgrau belegten Tischblatt. Dazu gehört der in schwarzem Leder gepolsterte Drehsessel Silver von Interstuhl mit einem Rücken ebenfalls in gebürstetem Aluminium. Die Stehleuchte Air von Nimbus in poliertem Edelstahl beleuchtet den Arbeitsplatz. Andererseits stehen für informelle Besprechungen zwei bequeme, runde Sessel - Mokka von Wittmann -  zur Verfügung, die mit dem kleinen Saarinentischchen in hochglänzendem Schwarz gruppiert sind. Die Sessel wurden mit einem Stoff von Andrew Martin überzogen: alle in aufeinander abgestimmten Violetttönen von Plume über Deep Purple und Eggplant bis zu Mauve, wobei jeder Büropartner seine eigene Farbe erhält.

Die schwarz glänzende, elegante Tischleuchte Spun Light von Flos strahlt auf dem Sideboard warmes, atmosphärisches Licht in den Besprechungsbereich aus.

Die Zimmer sind darüber hinaus mit einem schwebenden Sideboard entlang der Aussenwand und einem Schrank ausgestattet, der wie ein Bild an der Wand hängt. Sie sind als Schreinerarbeit in zurückhaltendem weiss gehalten und verleihen dem Zimmer dank ihrer schwebenden Wirkung mehr Raum. Eine textile Verfeinerung erhalten die Büros durch Bilder, die mit silbern schimmerndem Stoff von Création Baumann bezogen sind und die darunter liegenden Wandeinbaulautsprecher verdecken.

 

Zwischen den Eckzimmern, die sich zum Platz hin orientieren, liegt der gemeinsam genutzte, repräsentative Sitzungsraum mit Balkon und einem grossen Schiebefenster, dessen Flügel beim Öffnen elegant in der Wand verschwinden. Das Zimmer wird somit zur privaten, möblierten Loggia inmitten der Stadt.

Zentrum des Raumes bildet der ovale Sitzungstisch Ufo von Emmemobili in hochglänzendem Weiss, um den sich schwarze, lederne Drehstühle von Sawaya & Moroni gruppieren. Über dem Sitzungstisch hängt der Kronleuchter Kou von Item, der aus unzähligen Porzellanstrahlen in weissem Bone China besteht. Er versprüht Lichtstrahlen im ganzen Raum und unterstreicht mit seinem eindrücklichen Lichtspiel die übergeordnete Bedeutung des Sitzungszimmers. Der Ausblick nach Aussen wird von silbergrauen Vorhängen aus Madras-Seide gesäumt. Durch die beiden davor angeordneten Stehleuchten Spun Light offenbart der edle Stoff seinen changierenden Charakter und verleiht dem Raum Stofflichkeit und Wärme.

Die technische Ausrüstung, Lautsprecher und Flatscreen werden in einem weissen Einbaumöbel gänzlich versteckt. Zwei grosse Schiebepaneele lassen den schwarzen Flachbildschirm und eine herausziehbare Leinwand für Präsentationen zum Vorschein kommen.

Ein zentral angeordnetes Cheminée, eingefasst in Carrara Marmor, sowie der in einem weiteren Schrank eingebaute Weinkühlschrank bieten die Möglichkeit für unkonventionelle Besprechungen im angenehmen Rahmen und elegantem Ambiente.

 

Die Wände in den Toiletten sind lichtgrau gestrichen und bringen so die weissen Sanitärapparate zum Leuchten. Das Waschbecken ist auf ein schwebendes Sideboard mit Schubladen und einer Abdeckung in weissem Carrara-Marmor gestellt. Der raumhohe Spiegel mit den davorgehängten, speziell angefertigten Hängeleuchten lässt den Raum grosszügig erscheinen. Die auf dem Sideboard angerichteten Lavettes in violett und weiss erzeugen gemeinsam mit den weiteren Accessoires wie dem Seifenspender aus Porzellan von Decor Walther gediegene Hotelatmosphäre.

Zwischen WC und Urinal ist eine Dusche angeordnet, die mit dem weissen Vorhang von Interfrotta geschlossen wird. Da im Innern eine Deckenleuchte angeordnet ist, wirkt die Dusche als Leuchtkörper im Zentrum des Raumes.

 

In der Materialisierung des Innenraumes ist die Raumstruktur nachgezeichnet: Das Entrée ist in glänzendem Wandtäfer aus Makassar verkleidet und hat einen Bodenbelag aus glanzpoliertem, weissem Carrara Marmor, währenddem in den angrenzenden Räumen dunkles, geöltes Parkett aus Ipé mit hellen Wandanstrichen kombiniert ist. Das daraus entstehende Kippbild von dunkler Wand und hellem Boden zu heller Wand und dunklem Boden ist beabsichtigt und leuchtet ein: es entsteht eine Lichtdramaturgie vom gedämpftem Entrée, zu den silbergrau gestrichenen Dielen bis hin zu den mit Licht erfüllten Eckzimmern.

Eine angemessene Eleganz wird durch den Einsatz von edlen Materialien eingelöst. Sie sind präzise gefügt und versprühen zusammen mit der fein detaillierten Lamperie einen Hauch von Grandezza.