Haus am Theaterplatz
Die Einzigartigkeit des Theaterplatzes liegt in seiner attraktiven, innerstädtischen Lage hoch über der Limmat, befestigt durch eine historische Stadtmauer. Die Mauer trennt die Altstadt vom bewaldeten Limmatabhang, durch den eine geschwungene Treppe von der Flusspromenade zum Theaterplatz führt.
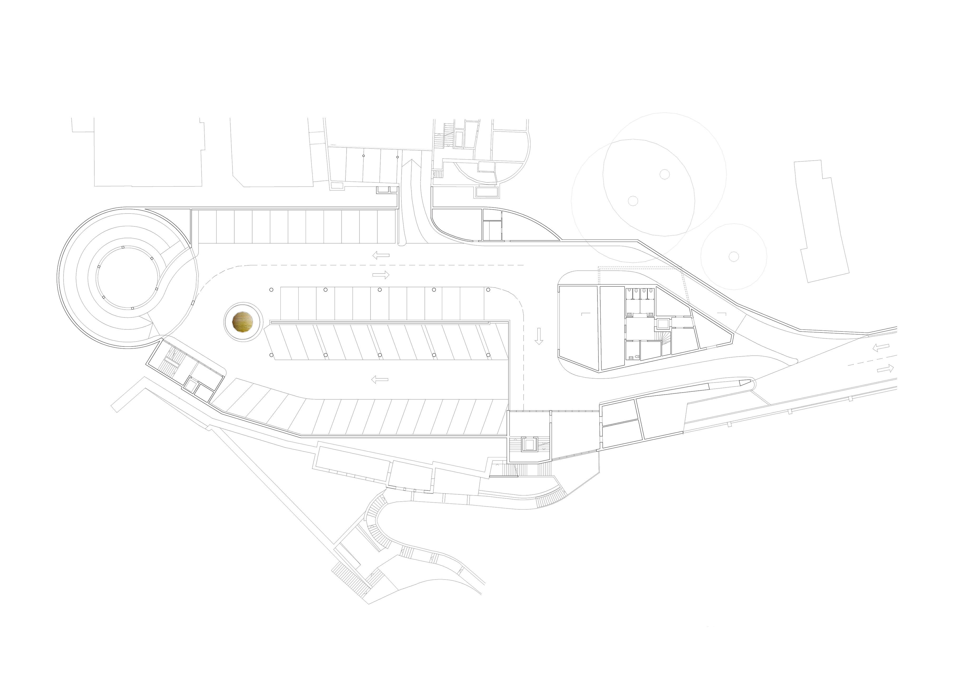
Erst durch den Bau des mehrteiligen Werkes, bestehend aus dem unterirdischen Parkhaus, der Platzgestaltung und dem neuen städtischen, „Haus am Theaterplatz“ wird der vormalige Parkplatz zum vielseitig nutzbaren Stadtplatz.
Tragende Idee des Platzentwurfes ist die Inszenierung der markantesten Eigenart des Ortes, der Begegnung von Stadtraum und Naturraum mitten in der Altstadt Badens.
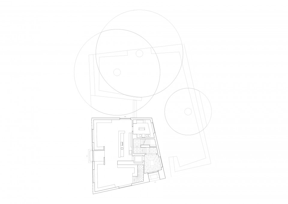
Das hohe, weiss verputzte Wohn- und Geschäftshaus am Theaterplatz vermittelt zwischen Stadt und Platz, wo sich vormals die Stadttextur in eine Hinterhofbebauung auflöste. Es wird durch seine starke Prägnanz zum Haus am Platz. Aus der skulpturalen Physiognomie, der symmetrischen Ausrichtung auf den Platz und seiner vom Stadtkörper losgelösten Stellung erhält es eine Kraft, die den übrigen Häusern am Theaterplatz fehlt.
Von der Ferne betrachtet wirkt der Solitär monolithisch und abstrakt. Dagegen offenbart er bei näherem Hinsehen traditionelle Details wie Simse, stehende, zweiflüglige Fenster und ein fein gestaltetes Fassadenrelief. Mit dieser ambivalenten Haltung bildet das Haus einerseits ein selbstbewusstes neues Stück Stadtsilhouette, andererseits flechtet es sich auf eine selbstverständliche Art in den traditionellen Kontext der unmittelbaren Nachbarschaft ein. Die Einbindung in die Stadt wird durch das Restaurant im Erdgeschoss weiter gefestigt: es entsteht eine Öffentlichkeit, die das fehlende „Theater“ am Theaterplatz vertritt.
Zum Restaurant gehört ein mit Hecken gefasster Garten, der dank dem alten Baumbestand mediterranen Charme ausstrahlt. Die mächtigen Bäume lassen das Haus eingewachsen erscheinen und bieten in den Büros der Obergeschosse und der doppelgeschossigen Attikawohnung reizvolle Ausblicke in deren Baumkronen.
Die von Geschoss zu Geschoss ausspringende Fassade verweist auf das dem Haus zugehörende, unterirdische Parkhaus und bildet als Abschluss eine zur expressiven Dachkrone geformte Attika, die den Baukörper zum Himmel hin auflöst.
Die modulierte Gestalt findet ihre Entsprechung in der Konstruktion: Die beiden Schichten der Wand - verputzte Aussendämmung und Rohbau - verspringen auf verschiedenen Höhen. Die Geschossdecke steht gegenüber dem darunterliegenden Mauerwerk um 4cm vor, der Versatz der Dämmung findet jedoch erst unterhalb der Fensterbank statt. Der unterschiedliche Verlauf von Rohbau und Dämmung macht ein Wechseln der Dämmstärke von 16 bis 20 cm notwendig, um den gewünschten Ausdruck zu erhalten. Dem dialektischen Prinzip der beiden Schichten ist somit die Bewegung des Baukörpers einbeschrieben.
Gepaart mit dem feinen, weissen Stuccoputz der Fassade ist weisser Kunststein mit Einschlüssen aus grünem Alpa Verde. Aus dem Stein sind die wuchtigen Fensterbänke, Simse und die Sockelverkleidung geformt und suggerieren an der Stelle den Eindruck vom Monolithischen, wo er am stärksten erlebbar wird: im Übergang von Wand zu Loch. Bronzen eloxierte Holzmetallfenster in der Öffnung bilden den feinen Abschluss des Baukörpers und vermitteln von Innen nach Aussen. Die grossen erdgeschossigen Fenster stellen den Bezug zum Garten im Westen, zum Theaterplatz im Süden und zur Limmat im Osten her. Deren ungewöhnliche Fensterhöhe deutet bereits die grosszügige Raumhöhe im Innern an.
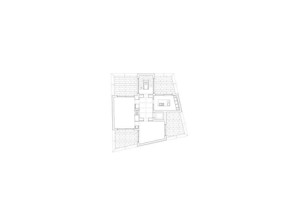
Wer das Wohn- und Geschäftshaus betritt, wird in einer hohen Eingangshalle empfangen. Sie vermittelt einen ersten Eindruck von der Art und Weise, wie in dem Haus gewohnt und gearbeitet wird. Neben dem in Edelstahl ausgekleideten Lift führt eine Natursteintreppe in grüngrauem Schiefer mit einem schwarz glänzenden Geländer in die einzelnen Obergeschosse, deren räumliche Organisation dieselbe ist: Im Herz des Grundrisses erwartet das Entrée.
Es ist zusätzliches Zimmer und verteilt in die einzelnen Räume. Spiegelungen des Materials, Durchgänge und Durchblicke in verschiedene Raumfolgen erzeugen eine spannende Tiefe. Eine erste Schicht bilden die beiden Diele, die zu einer weiteren Schicht führen: den Nebenräumen und den Eckzimmern. Dank der frei stehenden Lage des Hauses und dessen Grundrissform sind in den vier Gebäudeecken vier Zimmer angeordnet, welche aufgrund der unterschiedlichen Orientierung und dem eigenen Ausblick gänzlich verschiedene Raumstimmungen erlebbar machen.
Im zweiten Obergeschoss liegt zwischen den zum Platz hin orientierten Eckzimmern ein repräsentativer Sitzungsraum mit Balkon und einem grossen Schiebefenster, dessen Flügel beim Öffnen elegant in der Wand verschwinden. Der Raum wird somit zur privaten, möblierten Loggia inmitten der Stadt.
Die doppelgeschossige Attikawohnung knüpft an die Gestaltung der beiden Büros an und entwickelt deren Inhalte weiter. Anstelle der Eckzimmer sind in der Attika vier Terrassen angeordnet, die das Erleben des Tagesverlaufes - im Unterschied zu den übrigen Geschossen - im Freien erlauben.
In der Materialisierung des Innenraumes ist die Raumstruktur nachgezeichnet: Das Entrée ist in glänzendem Wandtäfer aus Makassar verkleidet und hat einen Bodenbelag aus glanzpoliertem, weissem Carrara Marmor, währenddem in den angrenzenden Räumen dunkles, geöltes Parkett aus Ipé mit hellen Wandanstrichen kombiniert ist. Das daraus entstehende Kippbild von dunkler Wand und hellem Boden zu heller Wand und dunklem Boden ist beabsichtigt und leuchtet ein: es entsteht eine Lichtdramaturgie vom gedämpftem Entrée, zu den silbergrau gestrichenen Dielen bis hin zu den mit Licht erfüllten Eckzimmern.
Eine angemessene Eleganz wird durch den Einsatz von edlen Materialien eingelöst. Sie sind präzise gefügt und versprühen zusammen mit der fein detaillierten Lamperie einen Hauch von Grandezza.
























