Direktauftrag 2008
Umnutzung eines Transformatorenhauses, angebaut an die historische Stadtmauer Badens, zu einer zweigeschossigen Loft. Sanierung der Gebäudehülle und Einbau einer objekthaften Treppe sowie Gestaltung eines kupferumhüllten Eingangs. Verwendung von Kupfer als Erinnerung an die ehemalige Nutzung. Die Brillanz des Materials verleiht der abgeschiedenen Stimmung des Ortes einen leuchtenden und sichtbaren Charakter.
Umnutzung Trafohaus
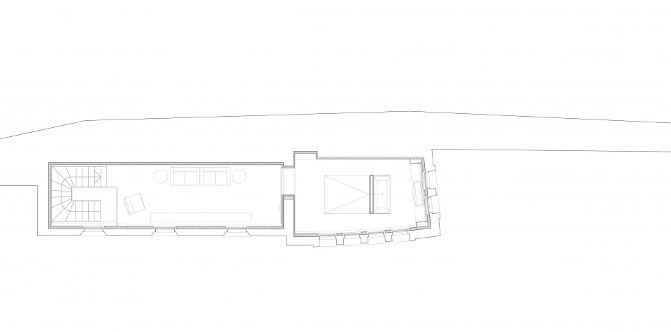
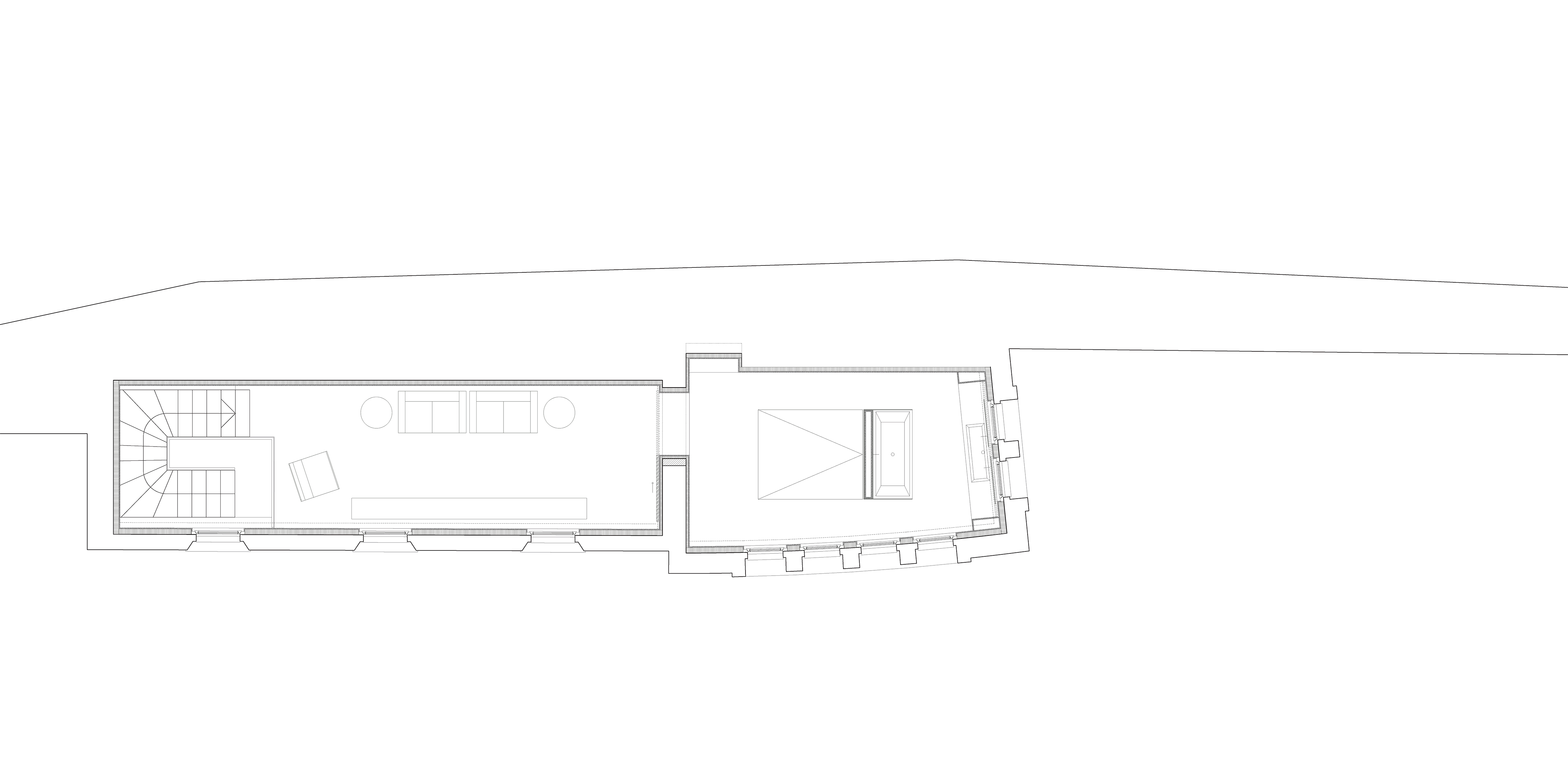
Das Transformatorenhaus befindet sich angebaut an die historische Stadtmauer Badens unterhalb des neuen Theaterplatzes. Es wurde in einem ersten Schritt 1922 für die Nutzung als Transformatorengebäude von den Städtischen Werken errichtet und 1947 um einen Kopfbau erweitert, von dem aus der ältere Bereich im weiteren Verlauf erschlossen wurde. Die Nutzung blieb zwar dieselbe, zur Luftumwälzung wurden aber über den Fenstern Lüftungsöffnungen und in der Decke über dem Erdgeschoss Aussparungen vorgesehen. Stilistisch lässt sich die technische Weiterentwicklung in der Erscheinung des Hauses in Fassade und Detaillierung des spärlichen Interieurs (Treppe mit Handlauf) jedoch nicht nachvollziehen, handelt es sich doch bei der Erweiterung um eine historisierende Geste, die Stolz auf die Errungenschaften der Elektrotechnik aber gleichzeitig auch respektvollen und bewussten Umgang mit dem geschichtsträchtigen Ort ausdrückt. Vor wenigen Jahren ging nun das Trafohaus von den Regionalwerken zur Stadt über, da die Aufgabe des Hauses, Strom zu transformieren und zu verteilen durch einen im Boden des Theaterplatzes versenkten Kastens übernommen wurde. Dies bildet die Ausgangslage für Überlegungen zur Umnutzung des alten Trafohauses am Theaterplatz.
ORT UND ARCHITEKTONISCHER AUSDRUCK
Durch seine Lage unterhalb des Theaterplatzes und in den Bäumen des Oelraines, erschlossen vom Treppenabgang zur Unteren Altstadt, umgibt den Ort eine geheimnisvolle, gar mystische Aura. Dieser Eindruck wird von der oben beschriebenen Erscheinung des Hauses weiter gestärkt. Das Haus ist in zwei Teile geteilt – einen Kopfbau, erbaut 1947, und einen Anhang, erbaut 1922. Die beiden Bereiche sind durch die mutmasslich frühere Fassade des älteren Teils voneinander getrennt. In den beiden Geschossen sind die verbindenden Durchgänge an unterschiedlichen Stellen. Die Raumdimensionen beider Bereiche weisen eine für zukünftige Nutzungen geringe Breite von ca. 2.70 – 3.20 Meter auf, demgegenüber steht die überproportionale Länge der Räume (bis zu ca. 10.50 Meter). Dies legt für zukünftige Nutzungen zwei mögliche Strategien nahe: das serielle Raumprinzip mit der Treppe an einem Ende einerseits und den Zweispänner mit mittiger Treppe andererseits. Zur aussergewöhnlichen Lage des Hauses gesellt sich die ergreifende, ursprüngliche Nutzung als Transformatorenstation. Die damals üblichen Transformatoren waren Stahlgehäuse mit Kühlrippen, in deren Innern sich Kupferspulen in einem Ölbad befanden. Diese Spulen wandelten die Stromspannung von mehreren Tausend Volt über magnetische Vorgänge in Spannungen von wenigen hundert Volt um. Die dabei entstehende Abwärme wurde einerseits an die massive Stadtmauer abgegeben, andererseits über Öffnungen in der Fassade nach Aussen geführt. Dieser eindrückliche Vorgang soll sowohl im Innern in Form der ebenfalls gewundenen, in Kupfer vorgeschlagenen Treppe als auch nach Aussen sichtbar mit dem kupferumhüllten Eingang abgebildet werden. Die Verwendung von Kupfer hilft abgesehen von der beabsichtigten Erinnerung an die ehemalige Nutzung auch, mittels der Brillanz des Materials der abgeschiedenen und schattigen Stimmung des Ortes einen leuchtenden und sichtbaren Charakter zu verleihen.
NUTZUNGSTAUGLICHKEIT
Das Packende des Hauses – seine Abgeschiedenheit – ist bezüglich seiner Nutzung auch das Herausfordernde. Nutzungen, die einer hohen Publikumsfrequenz bedürfen - wie Ladennutzungen beispielsweise - sind an diesem Ort kaum vorstellbar. Die Nutzungsvorschläge beziehen sich daher entweder auf nicht publikumsorientierte Nutzungen wie Wohnen, Büro und Sitzungslokal oder auf ganz spezifische Zielgruppen zugeschnittene Gastronomienutzungen wie Fumoir oder Wine – Loft. Die genannten Nutzungen werden anhand von dem beigelegten Variantenstudium diskutiert. Bedingt durch die geringe Raumbreite werden einerseits Nutzungen wie WC, Entree und Garderobe in einem eingeschossigen, kleinen Baukörper ausgelagert. Andererseits wird vorgeschlagen, den Lagerraum des Parkhauses im 1. Untergeschoss dem Trafohaus zuzuschlagen um Lagerflächen, bzw. Office- und Haustechnikräume anzubieten. Im weiteren ist für die Gastronomienutzung zusätzlicher Raumgewinn durch stellenweisen Abbruch der Bestandsmauer vorgesehen. Die für alle Nutzungen notwendige Leitungsführungen der Haustechnik wie Sanitärleitungen, etc. können in den bereits vor Ort vorgefundenen, grossräumigen Bodenkanälen gut untergebracht werden. Um die äussere Erscheinung des Hauses zu erhalten wird vorgeschlagen:, die Wärmedämmungsanforderungen mittels einer noch zu bestimmenden Innenwärmedämmung zu erfüllen. In den Plänen vorgesehen sind insgesamt 10cm Konstruktionsaufbau inkl. Innenputz, der beispielsweise aus verputzten, hochporigen Porebetonplatten bestehen könnte. Ebenso müssen neue Fenster eingebaut werden, um den Wärmedämmungsperimeter vollständig zu schliessen.









