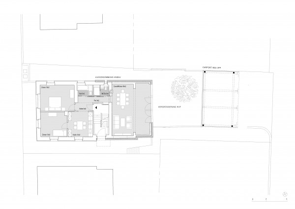
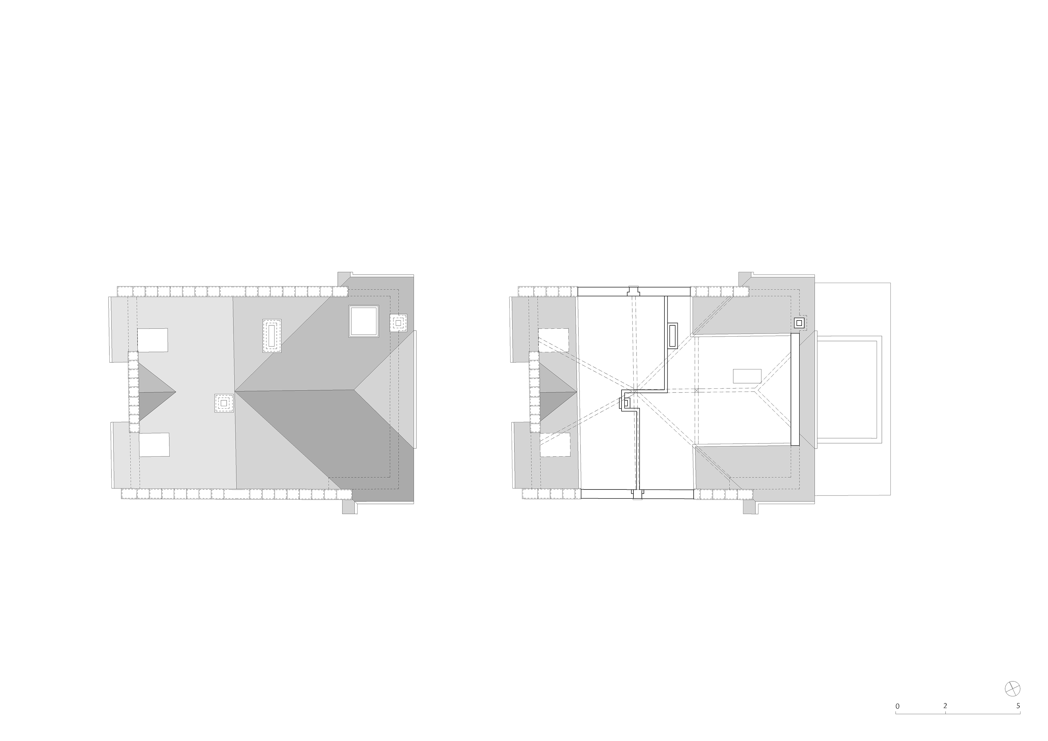
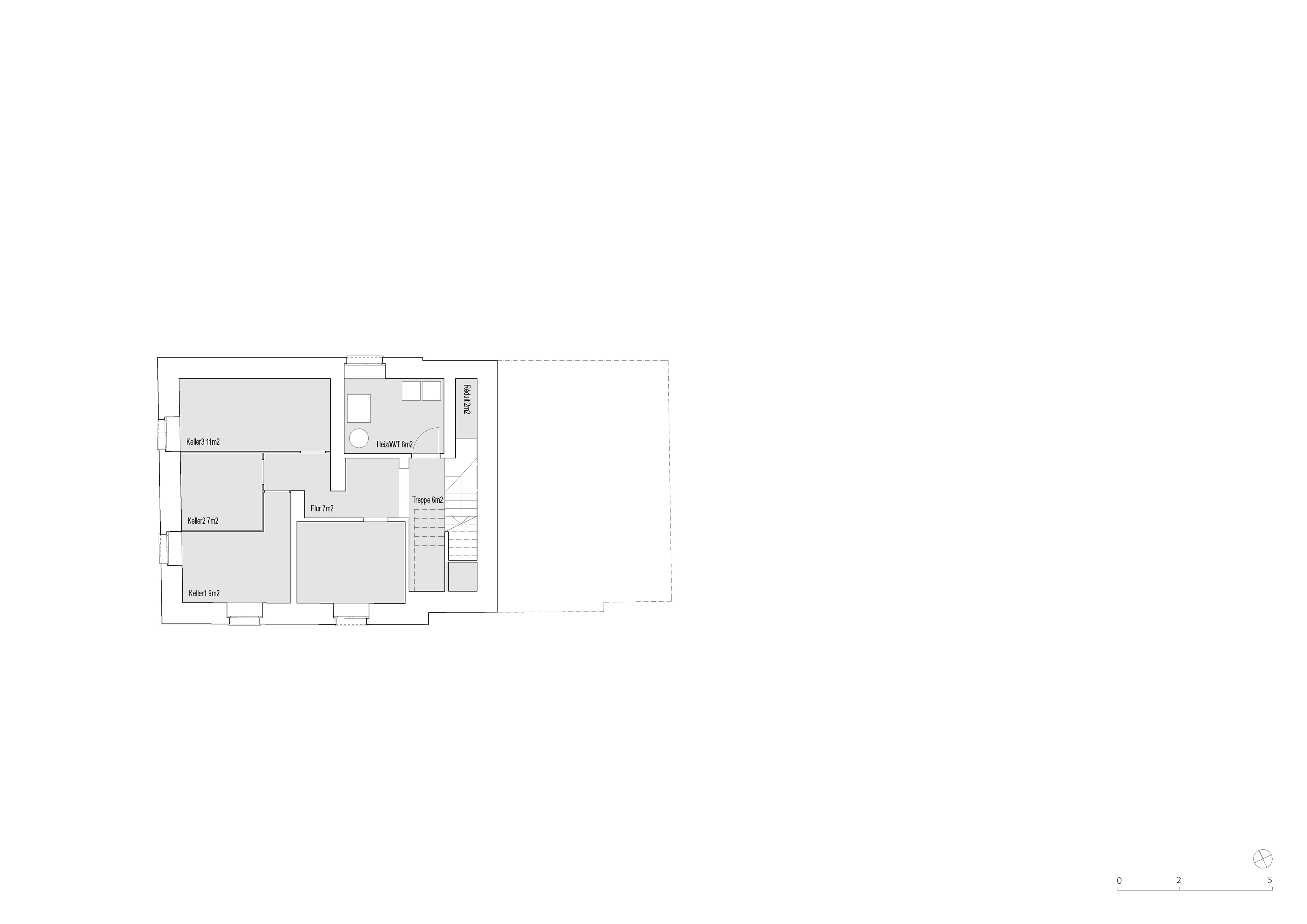
Haus Lägernstrasse
Baden

Direktauftrag 2010

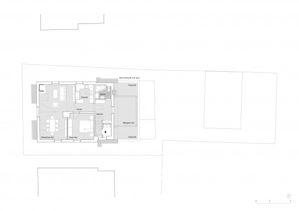
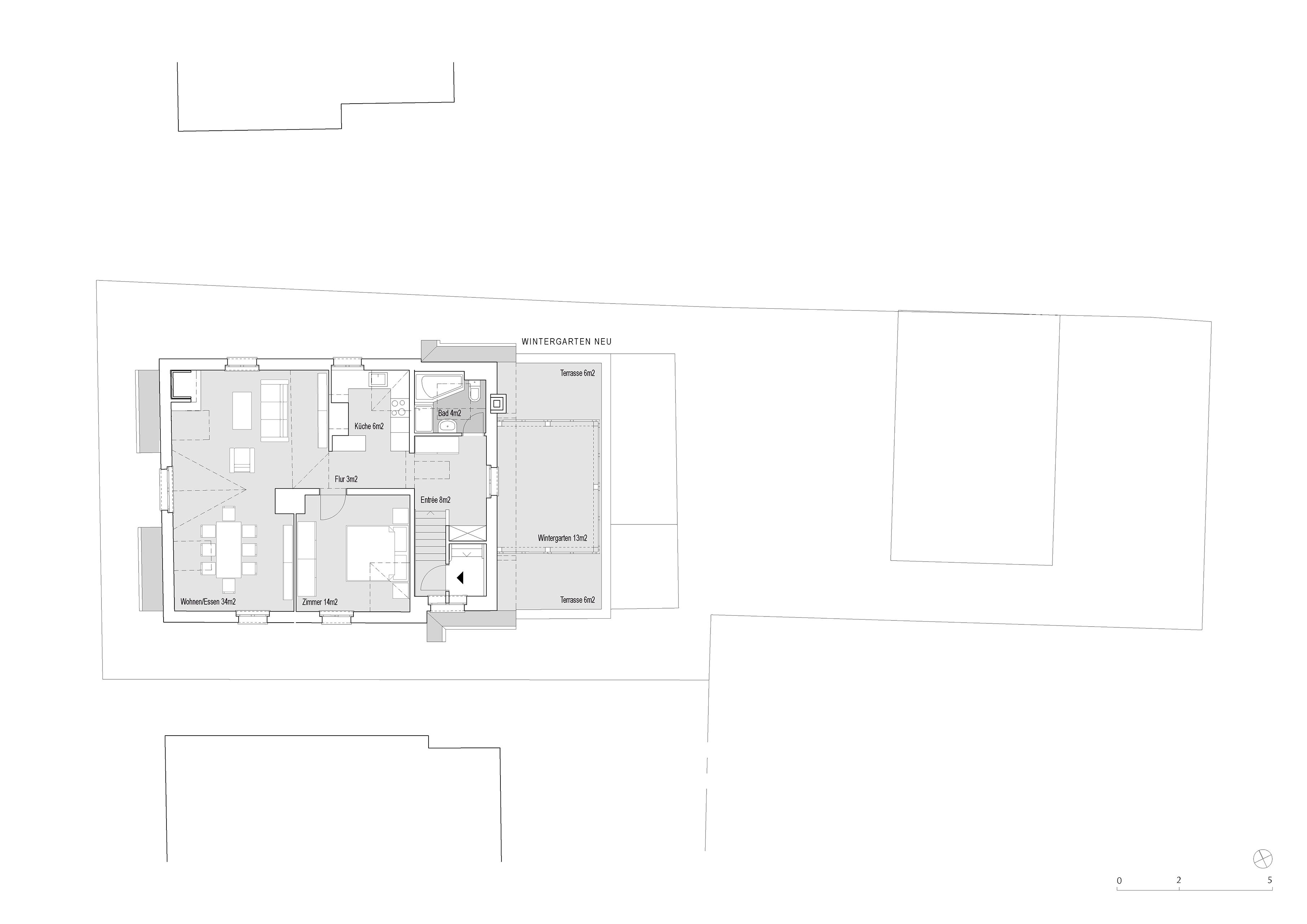
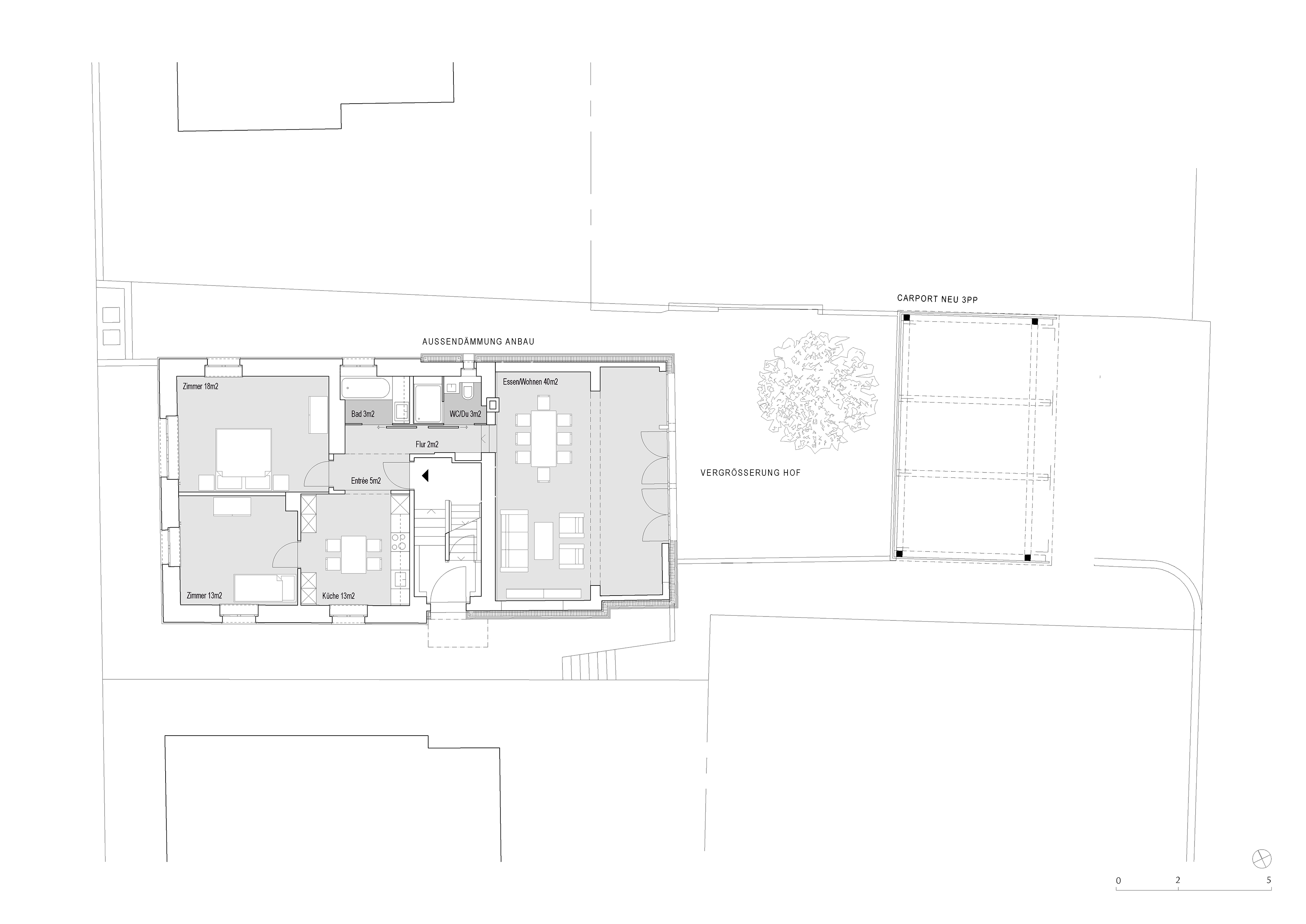
Umbau und Sanierung eines Mehrfamilienhauses mit bestehenden Werkstattanbau. Neues Layout mit drei Wohnungen. Der Anbau auf der Gartenseite erhält eine Fasssade mit Holzspalieren.

Haus Lägernstrasse